- 一戸建て
- 新着
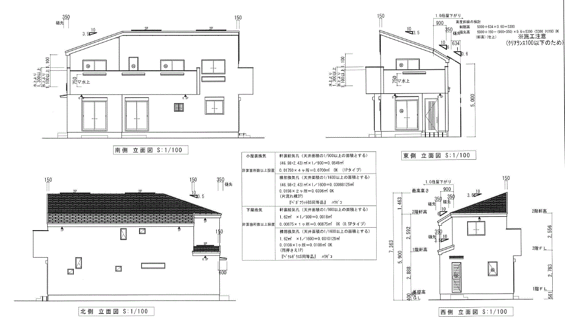
能見台:長浜2丁目 新築戸建 5380万円
ゆとりの敷地約47坪。カースペース2台分あり。能見台駅徒歩9分。
| 間取り | 4LDK | 価格 | 5,380万円 | 契約について | |
|---|---|---|---|---|---|
| 交通 | 京急本線 能見台駅 | ||||
| 所在地 | 神奈川県横浜市金沢区長浜2-2-4 | ||||
| 築年月 | 完成予定2022年10月 | ||||
| 土地面積 | 158㎡ | 建物(専有)面積 | - | 土地権利 | 所有権 |
| 建物構造・階数 | 木造2階建 | 道路(接道) | 7.28M | 総戸数 / 販売戸数 | 2戸 / 1戸 |
| 建ぺい率 / 容積率 | 40% / 80% | 建物向き | 南向き | ||
| 駐車場 | 2台可(車種による) | ||||
| 備考 | 最終1棟。ゆとりの敷地約47坪。前面道路幅員約5.3M。閑静住宅地です。LDK18.5帖を含むゆとりの4LDK。全室南向きの明るいお部屋。リビングに吹き抜け空間。ウォークインクローゼット有。床暖房完備 |
||||
| 詳細 | フローリング、ウォークインクローゼット、LDK18帖以上、南向き、日当たり良好、駐車場、食洗機、浄水器、システムキッチン、TVインターホン、ダブルロック | ||||