- 土地
- 新着
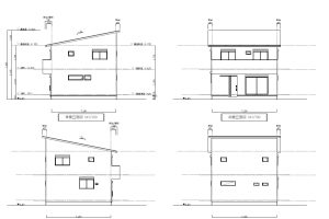
泉区上飯田町 建物付土地 1280万
・建築条件なし♪・静かな住環境♪・建築の自由度高◎・プライバシーの確保◎
| 間取り | 4LDK | 価格 | 1,280万円 | 契約について | 引渡相談 |
|---|---|---|---|---|---|
| 交通 | 相鉄いずみ野線 - | ||||
| 所在地 | 神奈川県横浜市泉区上飯田町2827-5 | ||||
| 築年月 | 昭和47年10月 | ||||
| 土地面積 | 142.20㎡ | 建物(専有)面積 | 96.26㎡ | 土地権利 | 所有権 |
| 建物構造・階数 | 木造2階建 | 道路(接道) | 東側3.6M公道に2.0M接道 | 総戸数 / 販売戸数 | 1戸 / 1戸 |
| 建ぺい率 / 容積率 | 50% / 80% | 建物向き | 南向き | ||
| 駐車場 | 有 | ||||
| 備考 | ※画像は建築プランになります。 ※調整区域につき現況渡しとなります。 ※再建築の際は横浜市への申請が必要となります。 |
||||
| 詳細 | |||||